Aufsteigender Rauch, fliegende Funken und ein greller Lichtbogen: Das alles sind Bilder und potenzielle Gefahren, die mit dem Handschweißen oft assoziiert werden. Dabei ist Schweißen mithilfe der richtigen persönlichen Schutzausrüstung schon längst kein Hexenwerk mehr – professionellen Schweißhelmen, Handschuhen und Schweißbekleidung sei Dank.
Dennoch gibt es eine unsichtbare Gefahr, die von vielen Seiten unterschätzt wird: elektrischer Strom. Doch wie lassen sich derartige Risiken erkennen und vor allem vermeiden? Wir haben die fünf spannendsten Fragen zum Thema „Gefahren des elektrischen Stromes“ gesammelt.
1. Was versteht man unter Leerlaufspannung?
Eine oft unterschätzte Gefahrenquelle stellt die sogenannte Leerlaufspannung dar. Dabei handelt es sich um die Spannung an den Anschlussstellen der Schweißleitungen, wenn kein Lichtbogen brennt. Sie wird zum Zünden des Lichtbogens zwingend benötigt und ist höher als die Spannung beim Schweißvorgang selbst. Je nach Verfahren beträgt die Arbeitsspannung zwischen 10 und 40 Volt. Für die Leerlaufspannung gibt es je nach Einsatzbedingungen festgelegte Begrenzungen, die nicht überschritten werden dürfen.

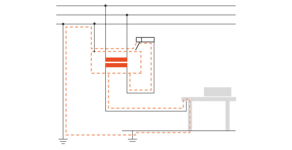
Querdurchströmung des Körpers bei versehentlichem Kontakt mit elektrischem Strom
Nur ein kurzer Moment der Unachtsamkeit kann gravierende Folgen haben. Denn während bei handelsüblichen Elektrogeräten die stromführenden Komponenten isoliert sind, besteht beim Schweißen naturgemäß das Risiko, leitende Teile zu berühren. Das kann schnell aus einer reflexartigen oder anderweitig unbeabsichtigten Bewegung geschehen. Wenn das passiert, kommt es zur Berührungsspannung – zu einer „Durchströmung“ des Körpers. Das bedeutet, der Strom sucht sich den kürzesten Weg zwischen Eintritts- und Austrittsstelle. Im schlimmsten Fall kann das lebenswichtige Organe betreffen.
2. Ab welcher Stromstärke besteht Gefahr?
Bereits geringe Stromstärken können für den menschlichen Körper gefährlich werden. 30 Milliampere reichen schon aus, um akute Lebensgefahr hervorzurufen. Zum Vergleich: Das ist gerade mal ein Zweitausendstel des Stroms, der zum Schweißen eines 6-mm-Blechs benötigt wird.
Generell wirkt elektrischer Strom reizend auf Muskeln, Nerven und das Herz-Kreislauf-System. Wird die „Loslass-Grenze“ von etwa 10 bis 15 mA überschritten, kann die Person unter Umständen aufgrund von auftretenden Krämpfen das stromführende Element nicht mehr eigenständig aus der Hand legen.
Je länger der Stromfluss durch den Körper anhält, desto größer fallen die gesundheitlichen Schäden aus. Darüber hinaus kommt es nicht selten zu sogenannten Sekundärunfällen wie Stürzen von Leitern oder anderen Verletzungen, die durch den Stromschlag ausgelöst werden.
3. Mehr Schweißgeräte = mehr Risiko?
Im Arbeitsalltag von Schweißfachkräften kann es durchaus vorkommen, dass an ein und demselben Werkstück mit mehr als einem Schweißgerät gearbeitet wird. Besonders beim Fügen von meterlangen Bauteilen wie Pipelines oder Lüftungsschächten ist es keine Seltenheit, dass zwei, drei oder noch mehr Schweißer/-innen gleichzeitig zum Einsatz kommen.

Ein besonderes Risiko herrscht bei unterschiedlicher Polung. Beim Gleichstromschweißen summieren sich dabei die jeweiligen Leerlaufspannungen der Schweißgeräte. Das führt mitunter zu gefährlich hohen Werten.
Beim Schweißen mit Wechselstrom kommt es darüber hinaus auch noch auf den netzseitigen Anschluss der Geräte an – im ungünstigsten Fall ist die Berührungsspannung auch hier die Summe aller Leerlaufspannungen.
4. Was sind verschleppte Schweißströme?
Eine weitere, oft übersehene Gefahr im Zusammenhang mit elektrischem Strom ist die der verschleppten Schweißströme: Schließt die Schweißfachkraft das Massekabel falsch an (zu weit vom Bauteil entfernt) oder legt den Elektrodenhalter unachtsam am Bauteil ab, kann das zum Durchbrennen von Schutzleitern führen.

Um sich gegen verschleppte Schweißströme möglichst wirksam zu schützen, bedarf es im Grunde nur der nötigen Portion Aufmerksamkeit und der Einhaltung der entsprechenden Normen.
So sollte etwa die Masse unbedingt direkt am Werkstück oder dessen Auflage angelegt werden – andere Teile, wie etwa Ketten oder Kranseile, dürfen keinesfalls dafür verwendet werden.
5. Wie kann ich mich am besten schützen?
Schweißen ist ein Handwerk, das gelernt sein will – nicht nur in der Fertigkeit, mit den Geräten und verschiedenen Grundmaterialien umzugehen, sondern dies vor allem auch sicher und mit minimiertem Unfallrisiko zu tun.
Gefahren durch elektrischen Strom gehören dabei leider zu den Risiken, die oftmals übersehen werden, da sie (vor allem visuell) nicht so präsent sind wie etwa Schweißrauch oder Lichtbogenstrahlung.
Die richtige persönliche Schutzausrüstung ist beim Schweißen absolute Pflicht, egal ob es um den Schutz vor dem Lichtbogen, vor schädlichen Dämpfen oder aber vor elektrischem Strom geht. Es beginnt mit der richtigen Schweißbekleidung. Vor allem das korrekte Schuhwerk gemäß ISO 20345 und die richtigen Schweißhandschuhe, die die Norm EN 12477 erfüllen müssen, sind hier essenziell.

Grundsätzlich zeichnet der Arbeitgeber dafür verantwortlich, alle relevanten Sicherheitsbestimmungen einzuhalten und ausreichend darüber zu informieren. Die Schweißfachkraft selbst muss vor Beginn der Arbeiten sicherstellen, dass die Schweißgeräte in einwandfreiem und unbeschädigtem Zustand sind. Der Betrieb muss außerdem immer entsprechend der am Leistungsschild angegebenen Schutzart erfolgen.
Nicht nur das verwendete Equipment und die Schutzausrüstung sind für die Arbeitssicherheit von Bedeutung, auch das Arbeitsumfeld spielt eine wichtige Rolle. So sind Bereiche mit eingeschränkter Bewegungsfreiheit genauso ein Risikofaktor wie etwa nasse oder feuchte Umgebungen. Hier ist mit besonderer Vorsicht zu agieren. Sollten Schweißarbeiten im Freien geplant sein, so muss das Gerät mindestens die Schutzart IP23 aufweisen.
Gefahren durch elektrischen Strom: real, aber vermeidbar
Es gibt beim Handschweißen also vieles zu beachten, um in einem sicheren Arbeitsfeld zu agieren, nicht nur beim Hantieren mit Strom. Auch andere Risikoquellen wie etwa Schweißrauch oder verblitzte Augen müssen im Arbeitsalltag immer bedacht werden. Dabei liegt die Verantwortung sowohl beim Arbeitgeber als auch bei der Schweißfachkraft. Die Einhaltung aller Normen und Arbeitsvorschriften ist essenziell für die Sicherheit beim Schweißen.
Ist Schweißen gefährlich?
Es wäre vermessen, diese Frage pauschal mit Ja oder Nein zu beantworten. So könnte man genauso gut erörtern, ob Autofahren gefährlich ist. In beiden Fällen kommt es auf die Einhaltung der nötigen Sicherheitsbestimmungen, das richtige Equipment und allem voran auf die nötige Portion Sachverstand und Vernunft an.
Sie wollen mehr zum Thema Arbeitssicherheit beim Schweißen erfahren? Auf unserer Website gibt’s noch mehr Infos und Details zum Bereich Schweißschutz.



